Versailles Clagny-Glatigny - Terrain constructible de 587 m² - Viabilisé - PC déposé pour une maison de 250 m² - Localisation idéale.
Paiement en cryptomonnaie disponible. En savoir plus
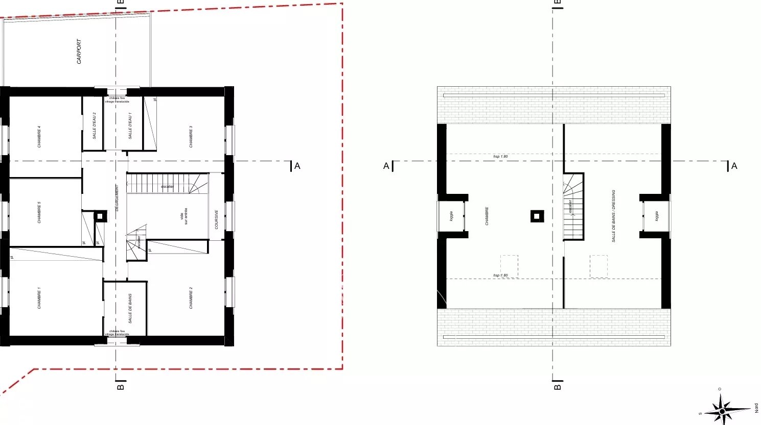
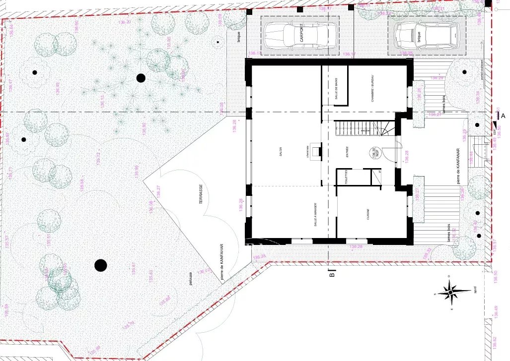
Honoraires : 4.00% TTC *Exclusivité. Votre consultant Barnes à Versailles - Damien Portail - vous propose en exclusivité une opportunité très rare à Versailles dans le quartier recherché de Clagny-Glatigny : un terrain à bâtir de prêt de 600 m² ! Idéalement placé à une adresse convoitée, ce terrain plat et arboré se situe très au calme et profite d'une exposition principale au Sud. Il s'agit d'un terrain constructible et viabilisé avec PC déposé, validé et purgé de tout recours pour un pojet de maison neuve d'environ 250 m² habitables avec sous-sol complet de près de 100 m² et stationnement extérieur pour 2 voitures (plans de masse et plans détaillés disponibles). Voilà une opportunité très rare à Versailles pour toute famille souhaitant vivre dans un quartier très privilégié, proche des meilleurs établissements scolaires (Saint Jean Hulst, Les Châtaigniers, Blanche de Castille...), et recherchant le calme et l'espace, le tout dans une maison neuve baignée de lumière à l'architecture contemporaine. Vraiment unique ! Honoraires charges acquéreurs 4% (1.153.850€ net vendeurs). Votre contact BARNES : Damien PORTAIL 06 60 42 72 23 d.portail@barnes-international.com « Les informations sur les risques auxquels ce bien est exposé sont disponibles sur le site Géorisques : www.georisques.gouv.fr » 1,153,850 € Honoraires d'agence non inclus - Honoraires agence: 4%TTC Honoraires à la charge de l'acquéreur - Damien PORTAIL - Agent commercial - EI - RSAC 892 234 196
Les informations sur les risques auxquels ce bien est exposé sont disponibles sur le site Géorisques : www.georisques.gouv.fr
Ce bien vous est présenté par:

S'inscrire à notre newsletter.
Nos actualités sur l'immobilier de luxe et nos évènements
Vous êtes intéressé(e) par ?