Detached family home - 3 bedrooms and 1 office - Quiet neighbourhood - Close to train stations and schools - Viroflay
Pago en criptomoneda disponible. Para saber más
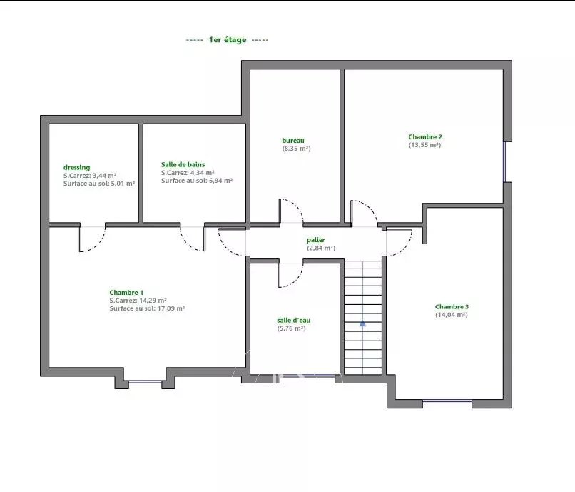
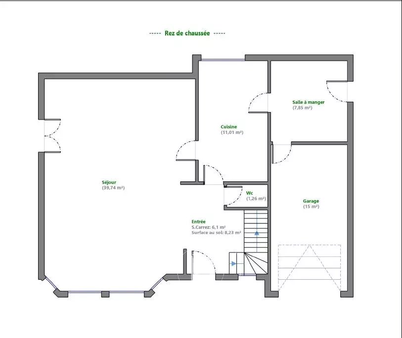
Honorarios : 4.01% TTC *Barnes Versailles exclusive Discover this detached house offering 133m² (1,432 sq ft) of living space set on a 279m² (3,003 sq ft) plot, close to schools, shops and train stations, in a quiet and sought-after residential neighbourhood of Viroflay Rive Gauche. Garden level: dual-aspect living/dining room equipped with a wood-burning stove with adjustable firebox (open or closed), fitted kitchen, separate toilet and adjoining garage. Upstairs: three bedrooms, including a master suite with walk-in wardrobe, bathroom and toilet, office and shower room with toilet. The 28m² (301 sq ft) convertible attic space offers potential for extension, bringing the total living area to approximately 161m² (1,733 sq ft). Top features: - Southwest-facing - great natural light - Landscaped, enclosed garden, with no overlook - Electric blinds, optical fibre Internet - Individual electric heating - EPC D/B - Quiet, leafy and highly sought-after location near the forest. Convertible family home in a prime location, a 5-minute walk from Rive Gauche station: RER C, line N (Montparnasse), tramway T6 (to Châtillon via Vélizy) and a 15-minute walk from Rive Droite station: line L (la Défense, Saint Lazare), but also a stone's throw from shops and schools (nursery, primary and middle schools), the Ecole Internationale de Sèvres and the Ecole Franco-Allemande de Buc. Don't miss this rare opportunity to acquire a house in immaculate condition in one of Viroflay's most sought-after neighbourhoods. Your consultant Frédérique Meinnier is available on +33 (0)7 82 80 15 21 for further information and/or a viewing. Fees at 4% payable by the buyers (€1,105,000 net seller price). €1,105,000 agency fees not included - Agency fees: 4.07% incl. tax Fees payable by the buyer - Estimated amount of annual energy costs for standard use based on 2021 energy costs: €1,850 ~ €2,570 - Information on the risks to which this property is exposed is available on the Géorisques website: www.georisques.gouv.fr - Frédérique Meinnier - Sales agent - EI - RSAC Versailles 520 416 108 1,048,000 € Agency fees not included - Agency commission: 4.01%VAT included Agency fees payable by buyer - Montant estimé des dépenses annuelles d'énergie pour un usage standard, établi à partir des prix de l'énergie de l'année 2021 : 1850€ ~ 2570€ - Les informations sur les risques auxquels ce bien est exposé sont disponibles sur le site Géorisques : www.georisques.gouv.fr - Frédérique MEINNIER - Agent commercial - EI - RSAC Versailles 520 416 108
La información sobre los riesgos a los que está expuesta esta propiedad está disponible en el sitio web de GeoHazards: www.georisques.gouv.fr
Gasto energético mínimo anual estimado para un uso estándar: 1850 €/año (año de referencia 2021)
Gasto energético máximo anual estimado para un uso estándar: 2570 €/año (año de referencia 2021)
Esta propiedad se presenta a través de:

Frédérique MEINNIER
Agente comercial E.I.
ContactoBARNES Versailles
41 rue de la Paroisse
78000 VERSAILLES
¡El boletín de BARNES!
Noticias en bienes raíces de lujo y las mejores ventas de bienes raíces
¿Le interesa?